Maison individuelle à vendre 4 chambres à Redange

  • Référence : 6503782
  • Type : Maison individuelle
  • Chambres : 4
  • Salles de bains : 2
  • Salle de douche : 1
  • Surface habitable : +/-260 m2
  • Prix de vente : 1 249 000 €
  • Honoraires d'agence :
  • Année de construction : 2020
  • Disponibilité : 2022-06-30
Contact
Classe énergétique
NC
Classe d'isolation thermique NC

Description

REDANGE - Cimm Immobilier Luxembourg vous propose en exclusivité à la vente cette ravissante maison neuve de 4 chambres avec garage 2 places, jardin et terrasse, construite en 2020 avec garantie décennale, idéalement située dans un environnement calme et paisible loin du trafic urbain.

Coup de cœur assuré !

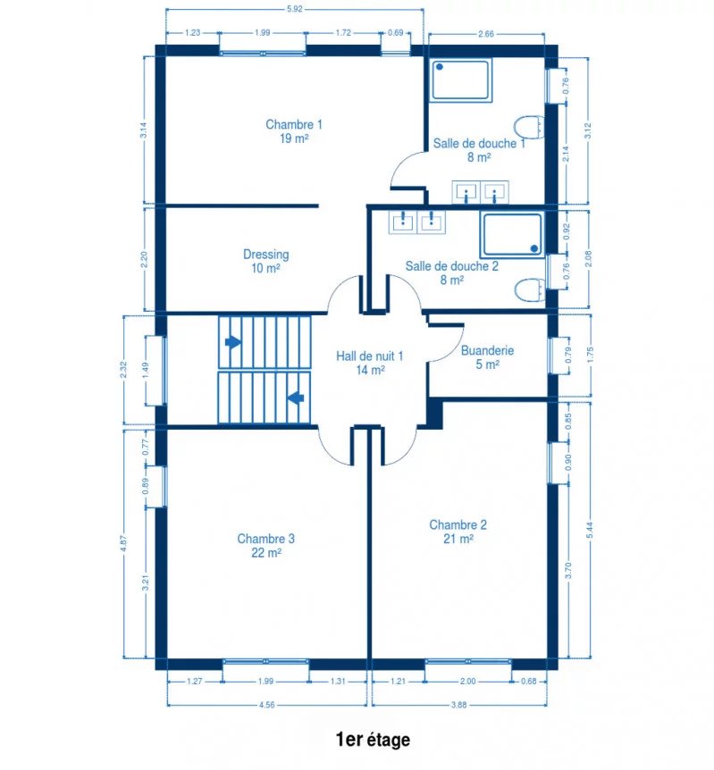
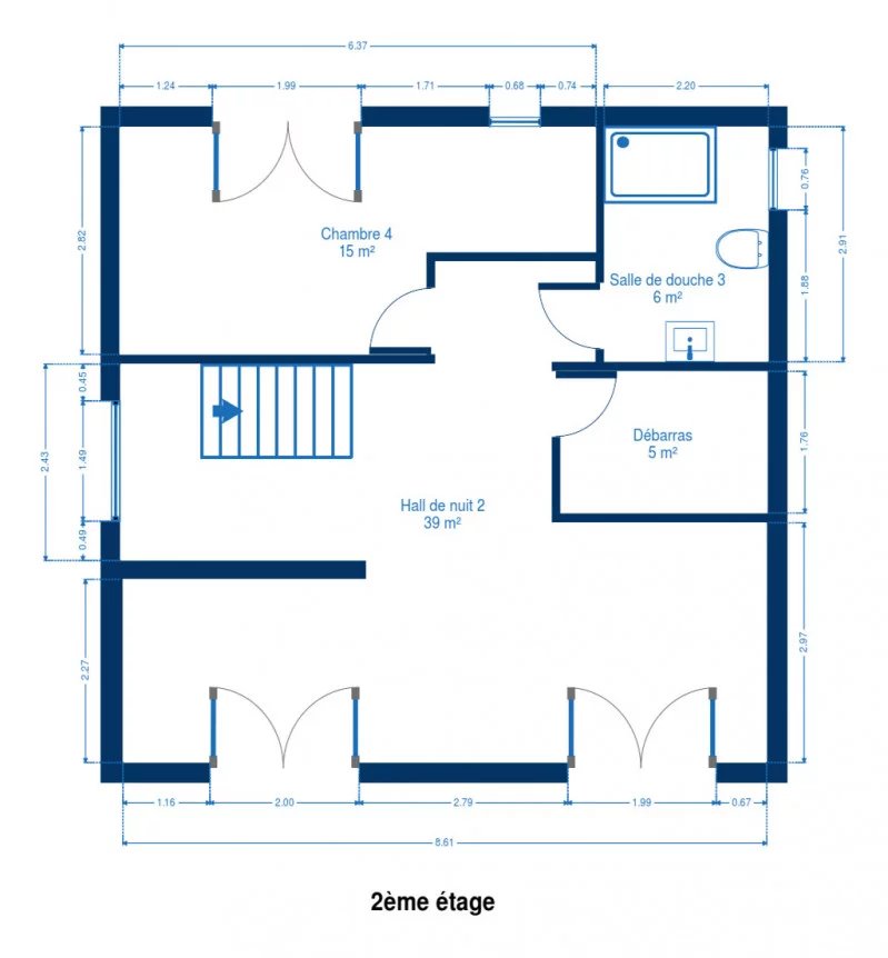
Composée au rez-de-chaussée d'un hall d'entrée desservant une spacieuse et lumineuse pièce de vie, entourée de baies vitrées, comprenant un espace salon / salle à manger; d'une cuisine hyper-équipée avec cave à vin, d'un WC individuel et d'un garage. Le 1er étage est quant à lui composé d'un hall de nuit laissant place à 3 chambres, 2 salles de douche, un dressing ainsi qu'une buanderie. Au 2ème étage on y retrouve un vaste hall de nuit donnant accès à une chambre, une salle de douche et un espace de rangement.

Equipement technique : chauffage au sol électrique, châssis triple vitrage, volets électriques, panneaux photovoltaïques.


Pour plus de renseignements et/ou visites, veuillez contacter Cimm Immobilier Luxembourg au : (+352)26 95 40 03.

Caractéristiques

Intérieur

Salon43.36 m2

Sanitaires

Salles de bains2
Salle de douche1
Toilette séparée1

Voiture

Garages2
Place de parkingOui

Autres

BuanderieOui

Chauffage / climatisation

ChauffageOui
Chauffage électriqueOui

Contactez-nous

+352 26 95 40 03
+352 661 342 346

Vous
 
Champs obligatoire
 
 
 
En envoyant ce formulaire, j’accepte que mes informations soient enregistrées puis utilisées par notre agence afin de répondre à ma demande. Consultez notre pour connaître vos droits.
 

Localisation

Redange